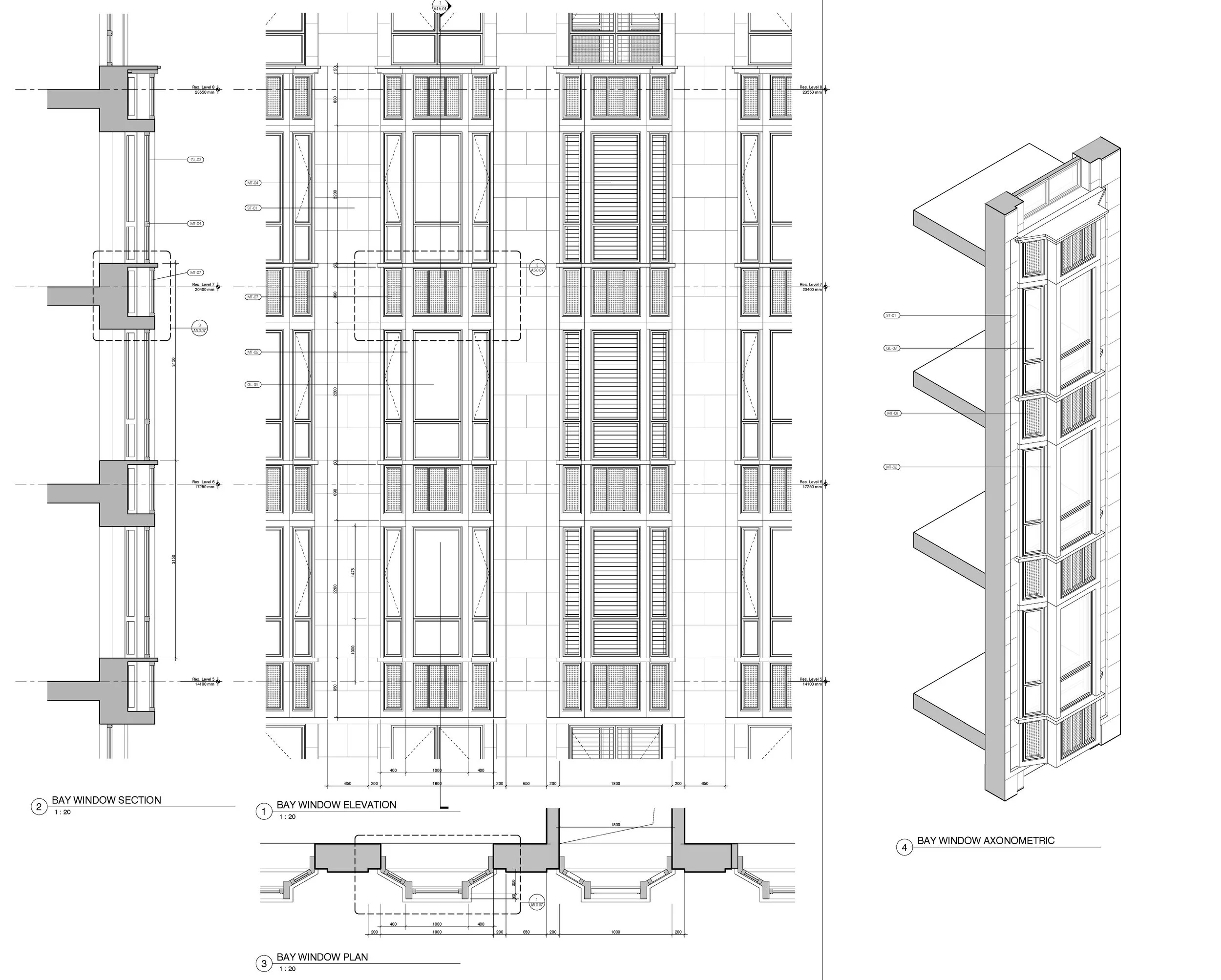
Metropolis 79, Hangzhou, China

Highrise residential development of 810,000 sq.ft composed by 4 towers, 2 mid-rise buildings, a clubhouse and a retail building. The retail building was the first to be built and used as a sales center. RAMSA involvement included interior design for the sales center.

Robert A.M. Stern Architects

Date of design: 2014 | Complete

Involvement: Designer, Construction Administration

Project director: Grant Marani, Paul Whalen

Previous
Previous

Kazlicesme | RAMSA

Next
Next

Affordable Housing Competition