Apartment Building, Boston, MA

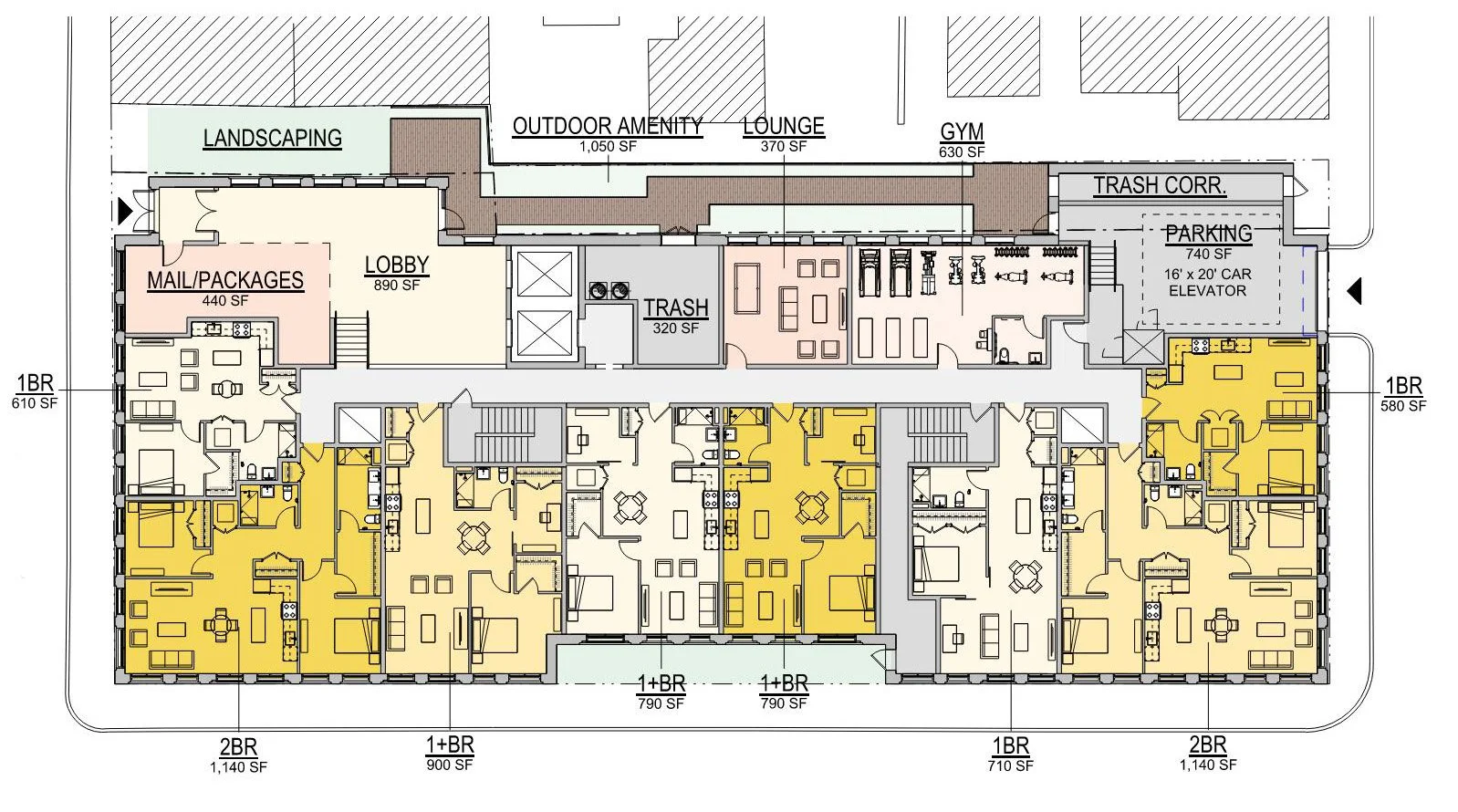
At 73,000 sf and 5 floors, this apartment building fits elegantly in an intimate and eclectic neighborhood of Boston. It is clad with green glazed brick and terracotta bay windows that take architectural cues from the surrounding buildings.

The building contains 51 efficient apartments. This is the first MA project where daylight analysis was used to compare massing options and make design decisions

Morris Adjmi Architects

Date of design: 2020

Involvement: Senior Project Manager | Lead Designer

Project director: Tom Lewis

Previous
Previous

110 E16th St | MA

Next
Next

Kazlicesme | RAMSA